实用专利


实用专利

一种环保除尘脱硫器

日期:2020-09-14 15:08浏览次数:

说    明    书    摘    要
本实用新型提供一种环保除尘脱硫器,涉及脱硫技术领域,包括底板和空心管,所述底板的顶部固定连接有壳体,所述底板的顶部且位于壳体的一侧固定连接有除尘箱,所述壳体内壁的底部固定连接有反应箱,所述空心管的内部设置有进气管,所述进气管的顶端贯穿壳体并延伸至壳体的顶端,所述空心管的底端贯穿反应箱并延伸至反应箱的内部,所述空心管延伸至反应箱内部的两侧均固定连接有搅拌杆。本实用新型通过对第二电机的速度进行控制,可实现对第一螺纹块和第二螺纹块之间的距离进行人为控制,从而可间接通过第一L形块和第二L形块带动第一锲形板和第二锲形板进行移动,进而可实现气体的定量出料,方便工作人员的使用。
 
 
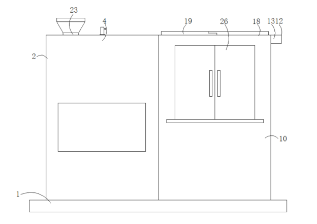
1.一种环保除尘脱硫器,其特征在于:包括底板(1)和空心管(5),所述底板(1)的顶部固定连接有壳体(2),所述底板(1)的顶部且位于壳体(2)的一侧固定连接有除尘箱(10),所述壳体(2)内壁的底部固定连接有反应箱(3),所述空心管(5)的内部设置有进气管(4),所述进气管(4)的顶端贯穿壳体(2)并延伸至壳体(2)的顶端,所述空心管(5)的底端贯穿反应箱(3)并延伸至反应箱(3)的内部,所述空心管(5)延伸至反应箱(3)内部的两侧均固定连接有搅拌杆(9),所述反应箱(3)顶部的一侧固定连接有第一电机(7),所述第一电机(7)输出轴的外表面套设有第二皮带轮(8),所述空心管(5)的外表面套设有第一皮带轮(6),所述第一皮带轮(6)的外表面与第二皮带轮(8)的外表面通过皮带传动连接,所述除尘箱(10)的内部开设有活动槽(11),所述除尘箱(10)一侧的顶部固定连接有电机箱(12),所述电机箱(12)内壁的底部固定连接有第二电机(13),所述第二电机13输出轴的外表面通过联轴器固定连接有螺纹杆(14),所述螺纹杆(14)的另一端依次贯穿电机箱(12)和活动槽(11)并延伸至活动槽(11)的内部,所述螺纹杆(14)延伸至活动槽(11)内部的一端通过轴承与活动槽(11)内壁的一侧转动连接。
2.根据权利要求1所述的一种环保除尘脱硫器,其特征在于:所述壳体(2)的顶部固定连接有加液斗(23)。
3.根据权利要求1所述的一种环保除尘脱硫器,其特征在于:所述螺纹杆(14)外表面的两侧且位于活动槽(11)的内部从左至右依次螺纹连接有第一螺纹块(15)和第二螺纹块(16),所述第一螺纹块(15)的顶部固定连接有第一L形块(17),所述第二螺纹块(16)的顶部固定连接有第二L形块(18)。
4.根据权利要求3所述的一种环保除尘脱硫器,其特征在于:所述第一L形块(17)的顶部固定连接有第一锲形板(19),所述第二L形块(18)的顶部固定连接有第二锲形板(20)。
5.根据权利要求4所述的一种环保除尘脱硫器,其特征在于:所述第一锲形板(19)与第二锲形板(20)配合使用。
6.根据权利要求3所述的一种环保除尘脱硫器,其特征在于:所述第一螺纹块(15)的正面通过销钉活动连接有第一连接杆(21),所述第一连接杆(21)的底端依次贯穿活动槽(11)和除尘箱(10)并延伸至除尘箱(11)的内部,所述第一连接杆(21)延伸至除尘箱(11)内部的一端固定连接有第一滤网(22),所述第二螺纹块(16)的正面通过销钉活动连接有第二连接杆(24),所述第二连接杆(24)的底端依次贯穿活动槽(11)和除尘箱(10)并延伸至除尘箱(11)的内部,所述第二连接杆(24)延伸至除尘箱(11)内部的一端固定连接有第二滤网(25),所述第二连接杆(24)的背面与第一连接杆(21)的正面通过销钉活动连接。
7.根据权利要求6所述的一种环保除尘脱硫器,其特征在于:所述除尘箱(10)与反应箱(3)通过通管连通,所述除尘箱(10)的正面设置有柜门(26)。
 
一种环保除尘脱硫器
 
技术领域
本实用新型涉及脱硫技术领域,尤其涉及一种环保除尘脱硫器。
背景技术
随着工业的发展和人们生活水平的提高,对能源的渴求也不断增加,燃煤烟气中的SO2已经成为大气污染的主要原因,减少SO2污染已成为当今大气环境治理的当务之急,若直接排放在空气中,会破坏周边环境,脱硫除尘器是除尘脱硫技术的专业脱硫设备。
现有技术中的进行除尘脱硫器降尘的效果不够好,除尘不彻底,并且除尘后的气体不能实现定量出料,从而降低了装置整体的实用性,给工作人员的使用带来许多不便。
实用新型内容
本实用新型的目的在于提供一种环保除尘脱硫器,以解决上述技术问题。
本实用新型为解决上述技术问题,采用以下技术方案来实现:一种环保除尘脱硫器包括底板和空心管,所述底板的顶部固定连接有壳体,所述底板的顶部且位于壳体的一侧固定连接有除尘箱,所述壳体内壁的底部固定连接有反应箱,所述空心管的内部设置有进气管,所述进气管的顶端贯穿壳体并延伸至壳体的顶端,所述空心管的底端贯穿反应箱并延伸至反应箱的内部,所述空心管延伸至反应箱内部的两侧均固定连接有搅拌杆,所述反应箱顶部的一侧固定连接有第一电机,所述第一电机输出轴的外表面套设有第二皮带轮,所述空心管的外表面套设有第一皮带轮,所述第一皮带轮的外表面与第二皮带轮的外表面通过皮带传动连接,所述除尘箱的内部开设有活动槽,所述除尘箱一侧的顶部固定连接有电机箱,所述电机箱内壁的底部固定连接有第二电机,所述第二电机输出轴的外表面通过联轴器固定连接有螺纹杆,所述螺纹杆的另一端依次贯穿电机箱和活动槽并延伸至活动槽的内部,所述螺纹杆延伸至活动槽内部的一端通过轴承与活动槽内壁的一侧转动连接。
本实用新型设置的第一电机和第二电机的通电方式均为外接电源,并且本装置的进气管上设置有阀门,提供阀门的设置,可方便工作人员的使用。
进一步地,所述壳体的顶部固定连接有加液斗。
通过加液斗的设置,可方便工作人员向反应箱的内部加入碱液。
进一步地,所述螺纹杆外表面的两侧且位于活动槽的内部从左至右依次螺纹连接有第一螺纹块和第二螺纹块,所述第一螺纹块的顶部固定连接有第一L形块,所述第二螺纹块的顶部固定连接有第二L形块。
第一螺纹块和第二螺纹块的形状均为矩形。
进一步地,所述第一L形块的顶部固定连接有第一锲形板,所述第二L形块的顶部固定连接有第二锲形板。
进一步地,所述第一锲形板与第二锲形板配合使用。
进一步地,所述第一螺纹块的正面通过销钉活动连接有第一连接杆,所述第一连接杆的底端依次贯穿活动槽和除尘箱并延伸至除尘箱的内部,所述第一连接杆延伸至除尘箱内部的一端固定连接有第一滤网,所述第二螺纹块的正面通过销钉活动连接有第二连接杆,所述第二连接杆的底端依次贯穿活动槽)和除尘箱并延伸至除尘箱的内部,所述第二连接杆延伸至除尘箱内部的一端固定连接有第二滤网,所述第二连接杆的背面与第一连接杆的正面通过销钉活动连接。
通过第一滤网和第二滤网的设置,可方便对反应完成后的气体进行过滤,避免有害物质进入大气层,符合环保理念。
进一步地,所述除尘箱与反应箱通过通管连通,所述除尘箱的正面设置有柜门。
通过通管的设置,可方便反应完成的气体进入除尘箱。
    本实用新型的有益效果是:
本实用新型通过空心管的内部设置有进气管,进气管的顶端贯穿壳体并延伸至壳体的顶端,所述空心管的底端贯穿反应箱并延伸至反应箱的内部,通过在空心管的内部设置进气管,可使得碱液与烟气直接接触,从而可加快装置整体的反应速率,并且本装置通过启动第二电机,第二电机间接通过螺纹杆带动第一螺纹块和第二螺纹块进行相向或者反向运动,通过第一螺纹块和第二螺纹块的相向或者反向运动可间接通过第一L形块和第二L形块带动第一锲形板与第二锲形板开启或者分离,由于第二电机为调速电机,可实现第一锲形板与第二锲形板定距离的开启和关闭,进而可实现气体的定量出料,并且通过第一滤网和第二滤网的设置,可对反应完成后的烟气进行有效除尘,便于工作人员的使用。 
附图说明
图1为本实用新型的结构示意图;
图2为本实用新型的A处局部放大图;
图3为本实用新型的外部图。
附图标记:1-底板、2-壳体、3-反应箱、4-进气管、5-空心管、6-第一皮带轮、7-第一电机、8-第二皮带轮、9-搅拌杆、10-除尘箱、11-活动槽、12-电机箱、13-第二电机、14-螺纹杆、15-第一螺纹块、16-第二螺纹块、17-第一L形块、18-第二L形块、19-第一锲形板、20-第二锲形板、21-第一连接杆、22-第一滤网、23-加液斗、24-第二连接杆、25-第二滤网、26-柜门。
具体实施方式
为了使本实用新型实现的技术手段、创作特征、达成目的与功效易于明白了解,下面结合具体实施例和附图,进一步阐述本实用新型,但下述实施例仅仅为本实用新型的优选实施例,并非全部。基于实施方式中的实施例,本领域技术人员在没有做出创造性劳动的前提下所获得其它实施例,都属于本发明的保护范围。
下面结合附图描述本实用新型的具体实施例。
如图1-3所示,一种环保除尘脱硫器,包括底板1和空心管5,所述底板1的顶部固定连接有壳体2,所述底板1的顶部且位于壳体2的一侧固定连接有除尘箱10,所述壳体2内壁的底部固定连接有反应箱3,所述空心管5的内部设置有进气管4,所述进气管4的顶端贯穿壳体2并延伸至壳体2的顶端,所述空心管5的底端贯穿反应箱3并延伸至反应箱3的内部,所述空心管5延伸至反应箱3内部的两侧均固定连接有搅拌杆9,所述反应箱3顶部的一侧固定连接有第一电机7,所述第一电机7输出轴的外表面套设有第二皮带轮8,所述空心管5的外表面套设有第一皮带轮6,所述第一皮带轮6的外表面与第二皮带轮8的外表面通过皮带传动连接,所述除尘箱10的内部开设有活动槽11,所述除尘箱10一侧的顶部固定连接有电机箱12,所述电机箱12内壁的底部固定连接有第二电机13,所述第二电机13输出轴的外表面通过联轴器固定连接有螺纹杆14,所述螺纹杆14的另一端依次贯穿电机箱12和活动槽11并延伸至活动槽11的内部,所述螺纹杆14延伸至活动槽11内部的一端通过轴承与活动槽11内壁的一侧转动连接。
本实用新型设置的第二电机13为伺服电机,并且第二电机13的速度可根据实际需要对其进行控制,通过对第二电机13的速度进行调节,可实现对第一螺纹块15和第二螺纹块16之间的距离进行人为控制,从而可间接通过第一L形块17和第二L形块18带动第一锲形板19和第二锲形板20进行移动,进而可实现气体的定量出料,方便工作人员的使用。
所述壳体2的顶部固定连接有加液斗23。
加液斗23通过软管与反应箱3的内部连通。
所述螺纹杆14外表面的两侧且位于活动槽11的内部从左至右依次螺纹连接有第一螺纹块15和第二螺纹块16,所述第一螺纹块15的顶部固定连接有第一L形块17,所述第二螺纹块16的顶部固定连接有第二L形块18。
螺纹杆14外表面的螺纹为旋向相反的两段,通过螺纹传动作用可带动第一螺纹块15和第二螺纹块16进行同向或者反向移动。
所述第一L形块17的顶部固定连接有第一锲形板19,所述第二L形块18的顶部固定连接有第二锲形板20。
第一锲形板19与第二锲形板20相互嵌合。
所述第一锲形板19与第二锲形板20配合使用。
通过第一锲形板19与第二锲形板20的开启可关闭,可便于气体的排出。
所述第一螺纹块15的正面通过销钉活动连接有第一连接杆21,所述第一连接杆21的底端依次贯穿活动槽11和除尘箱10并延伸至除尘箱10的内部,所述第一连接杆21延伸至除尘箱10内部的一端固定连接有第一滤网22,所述第二螺纹块16的正面通过销钉活动连接有第二连接杆24,所述第二连接杆24的底端依次贯穿活动槽11和除尘箱10并延伸至除尘箱10的内部,所述第二连接杆24延伸至除尘箱10内部的一端固定连接有第二滤网25,所述第二连接杆24的背面与第一连接杆21的正面通过销钉活动连接。
通过第一滤网22和第二滤网25的设置,可方便将烟气中的固体颗粒进行过滤。
所述除尘箱10与反应箱3通过通管连通,所述除尘箱10的正面设置有柜门26。
通过柜门26的设置,可方便工作人员对第一滤网22和第二滤网25进行定期清洁。
工作原理:在使用时,先通过加液斗23,向反应箱3的内部加入碱液,碱液添加完成后,打开进气管4上的阀门,使得烟气进入反应箱的内部,同时,启动第一电机7,第一电机7启动时,就会带动第二皮带轮8进行旋转,由于第二皮带轮8的外表面与第一皮带轮6的外表面通过皮带传动连接,因此,通过第二皮带轮8的旋转可带动第一皮带轮6进行旋转,第一皮带轮6旋转时,可间接通过空心管5带动进气管4旋转,即可使得烟气直接与碱液接触;
并且,通过空心管5的旋转可间接带动搅拌杆9对其进行搅拌,从而可加快其反应速率,反应完成后,关闭第一电机7,反应完成后的气体通过通管进入除尘箱10的内部,除尘箱10内部的第一滤网22和第二滤网25可对反应完成后的气体进行过滤,过滤完成后,可通过启动第二电机13,第二电机13启动时,就会带动螺纹杆14进行旋转,由于螺纹杆14外表面的螺纹为旋向相反的两段,通过螺纹传动作用可带动第一螺纹块15和第二螺纹块16进行反向移动,通过第一螺纹块15和第二螺纹块16的反向移动可间接通过第一L形块17和第二L形块18带动第一锲形板19与第二锲形板20分离,进而可使过滤完成的气体通过。
在本实用新型中,除非另有明确的规定和限定,第一特征在第二特征之 “上”或之“下”可以包括第一和第二特征直接接触,也可以包括第一和第二特征不是直接接触而是通过它们之间的另外的特征接触。而且,第一特征在第二特征“之上”、“上方”和“上面”包括第一特征在第二特征正上方和斜上方,或仅仅表示第一特征水平高度高于第二特征。第一特征在第二特征“之下”、“下方”和“下面”包括第一特征在第二特征正下方和斜下方,或仅仅表示第一特征水平高度小于第二特征。
以上显示和描述了本实用新型的基本原理、主要特征和本实用新型的优点。本行业的技术人员应该了解,本实用新型不受上述实施例的限制,上述实施例和说明书中描述的仅为本实用新型的优选例,并不用来限制本实用新型,在不脱离本实用新型精神和范围的前提下,本实用新型还会有各种变化和改进,这些变化和改进都落入要求保护的本实用新型范围内。本实用新型要求保护范围由所附的权利要求书及其等效物界定。
 
图 1
图 2
 
 
 
 
 
图 3